Skip to content Skip to footer

Dicta sunt explicabo. Nemo ipsam voluptatem quia voluptas aspernatur aut odit aut fugit, sed quia. Dicta sunt explicabo. Nemo enim ipsam voluptatem quia voluptas sit aspernatur aut odit.

ClientRestaurantDate2016AuthorAmy WalkerShare

Kuvaus

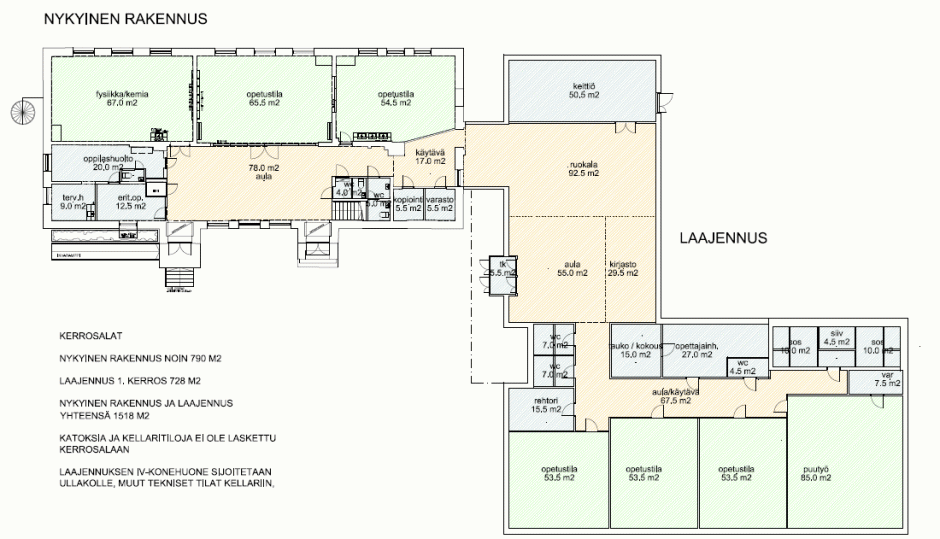
Skräbbölen koulun sähköurakka sisälsi asennuksia myös vanhan osan saneerauksesta, mutta pääsääntöisesti 750m² käsittävästä uudisrakennuksesta. 

Urakka ajoittui kahteen ajanjaksoon syystä, että koulun piti voida toimia normaalisti koko urakan ajan. Sähköurakka tehtiin avaimet käteen -periaatteella.